Hierro fundido/ hierro dúctil Boca de incendio
- Estándar: BS750
- Material: hierro dúctil GGG50/40 or Hierro fundido, Tapa de válvula : Hierro fundido/ hierro dúctil
- Recubrimiento: interno y externo: con epóxido de empalme de fusión revestimiento O pintura liquida

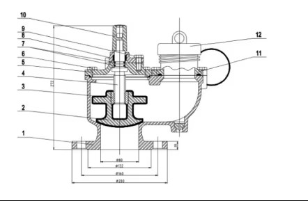
| Artículo |
Parte |
Material |
| 1 |
Cuerpo |
Hierro dúctil |
| 2 |
Puerta |
Hierro dúctil/EPDM |
| 3 |
tuerca tallo |
Latón |
| 4 |
tallo |
SS420 |
| 5 |
Bonnet |
hierro dúctil |
| 6 |
perno |
Acero al carbono |
| 7 |
anillo tórico |
NBR |
| 8 |
Glándula |
hierro dúctil |
| 9 |
perno |
Acero al carbono |
| 10 |
Cap Top |
Hierro dúctil |
| 11 |
Salida |
Acero inoxidable |
| 12 |
Cap |
plástico |
Si quiere saber más detalles, por favor envie un correo electronico a nosotros solidvalves@aliyun.com. |
|